压阻式差压变送器利用半导体硅材料的压阻效应,实现差压的精确测量。

压阻式差压变送器

压阻式差压变送器采用全焊接集成差压测量元件。芯片与两个波纹膜片之间填充硅油。本产品利用半导体硅材料的压阻效应,实现差压与电信号的转换。敏感芯片上惠斯通电桥的输出信号与差压具有良好的线性关系,因此能够精确测量差压。适用于石油、化工等行业各种气体和液体的差压测量。

Sino-Inst 提供多种用于工业压力测量的差压变送器。如有任何疑问,请联系我们的销售工程师。

压阻式差压变送器的特点

  • 全不锈钢结构设计;
  • 体积小、重量轻、易于安装;
  • 焊接结构,全密封;
  • 外壳防护等级 IP65;
  • 传感器为扩散硅压阻式差压传感器,采用 316L 不锈钢隔离膜片;
  • 经温度补偿和老化筛选,性能稳定可靠;
  • 连接器型产品可外部调节零点和满量程;

压阻式差压变送器的参数

量程:0~10KPa~35MPa
耐压:量程值的三倍
综合精度:0.2% FS,0.5% FS
输入输出信号:4-20mA(两线制),0-5/1-5/0-10VDC(三线制)
供电电压:24VDC(10-30VDC)
介质温度:-20~65℃
环境温度:-20~65℃
负载电阻:电流输出型:最大800Ω;电压输出型:大于50KΩ
绝缘电阻:大于2000MΩ(100VDC)
密封等级:IP65
长期稳定性:0.1% FS/年
抗振性能:在20Hz~1000Hz的机械振动频率范围内,输出变化小于0.1% FS
电气接口:Hessman连接器(支持定制)
机械连接(螺纹接口):M20×1.5,G1/2

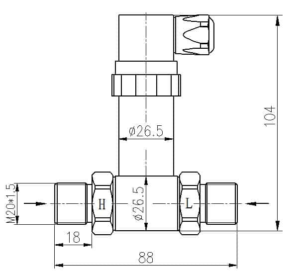
尺寸图

压阻式差压变送器的尺寸

应用

  • 流量测量
  • 污水处理
  • 风压差破坏
  • 水电站水压差
  • 城市防洪与内涝防治
  • 水下工程
  • 地下水监测
  • 中央空调终端控制
  • 节水灌溉

压阻式差压变送器的工作原理

压阻式差压变送器的敏感元件是一块固态压阻敏感芯片。芯片与两个波纹膜片之间填充有硅油。

被测差压作用于波纹膜片的两端,并通过硅油传递至敏感芯片。敏感芯片通过导线连接至专用放大电路,利用半导体硅材料的压阻效应实现差压与电信号的转换。

敏感芯片上惠斯通电桥的输出信号与差压具有良好的线性关系。

因此,可以实现对被测差压的精确测量。该变送器可用于测量各种气体和液体的压差,尤其适用于石油化工行业管道的压差和水位差测量。

阅读更多: 差压变送器安装指南

压阻效应

所谓压阻效应是指半导体在受到应力作用时,由于应力作用导致能带结构发生变化,能谷能量移动,进而引起电阻率改变的现象。

该效应由C.S. Smith于1954年在对硅和锗的电阻率和应力变化特性进行测试时发现。半导体压阻传感器已广泛应用于航空、化工、船舶、电力和医疗等领域。

应变压力传感器与压阻式压力传感器

原理上,应变式压力传感器的工作原理是:外部压力(或张力)引起受力材料几何形状(长度或宽度)的变化,进而导致材料电阻发生变化。通过检测这种电阻变化,即可测量外部力的大小。

压阻式压力传感器通常采用半导体压力敏感材料。半导体压阻式传感器在受到外力作用后,其自身几何形状几乎不变,而是发生晶格参数的变化,进而影响禁带宽度。即使禁带宽度发生微小变化,也会导致载流子浓度发生显著变化,最终引起材料电阻率的变化。

可以看出,虽然两种材料在受到外力作用时电阻都会发生变化,但其原理却截然不同。此外,应变型材料对外部作用力的灵敏度远低于半导体压阻材料。

后者的灵敏度约为前者的100倍。应变型材料的特性受温度影响较小,而半导体压阻材料则对温度非常敏感。

压阻式压力传感器的优点和缺点

压阻式压力传感器的优点:

  • 高频响应,f0 可达 1.5MHz;
  • 体积小,功耗低;
  • 灵敏度高,精度好,测量精度可达 0.1%;
  • 无移动部件(敏感元件与转换元件集成在一起)。

压阻式压力传感器的缺点:

  • 温度特性较差;
  • 工艺流程复杂。

技术支持

电容式MEMS压力传感器

MEMS压力传感器是一种薄膜元件。它在受到压力时会发生形变,这种形变可以通过应变片(压阻式传感)进行测量。它也可以通过电容式传感两个表面之间距离的变化来进行测量。

电容式压力传感器是一种利用电容式传感元件将测得的压力转换为具有一定关系的电信号输出的压力传感器。其特点是:

  • 输入能量低、
  • 动态响应高、
  • 自然噪声小、
  • 环境适应性好。

电容式差压传感器

电容式差压传感器测量膜片的左右腔室内填充有硅油。当左右隔离膜片分别承受高压 pH 和低压 pL 时,硅油的不可压缩性和流动性可以将差压 Δp = pH – pL 传递到膜片的左右两侧进行测量。

由于测量膜片在焊接前经过预张紧处理,因此在差压 Δp = 0 时膜片非常平整,使得固定板左右两侧两个电容的电容值完全相等,即 CH = CL。当存在差压作用时,测量膜片会发生形变,即移动电极板靠近低压电极板,同时远离高压测量电极板,此时电容值 CH = CL。

更多特色压阻式压力传感器

什么是压阻式压力传感器?

压阻式压力传感器(压阻式换能器)是一种压力传感器。压阻式压力传感器,又称扩散硅压力传感器,是指利用单晶硅材料的压阻效应和集成电路技术制成的传感器。当单晶硅材料受到力的作用时,其电阻会发生变化。通过测量电路,可以获得与力变化成正比的电信号输出。压阻式传感器可用于测量和控制压力、张力、压差以及其他可转化为力变化的物理量,例如液位、加速度、重量、应变、流速、真空度等。

压阻式压力传感器的工作原理是什么?

压阻式压力传感器的工作原理:
当压敏电阻受到挤压时,其电阻值会发生变化。该变化信号经放大器放大,并用标准压力进行校准,从而可以检测压力。压阻式压力传感器的性能主要取决于压敏电阻(即压敏电阻本身)、放大电路以及生产过程中的校准和老化工艺。


压阻式传感器测量的是什么?

利用半导体压阻效应,可以设计出各种类型的压阻式传感器。压阻式传感器体积小、结构相对简单、灵敏度高,能够测量十微帕以上的微压,具有良好的动态响应、良好的长期稳定性、低滞后和蠕变、高频响应、易于生产和低成本等优点。因此,压阻式传感器已被广泛应用于压力、差压、液位、加速度和流量的测量。

如何测试压力传感器?

压力传感器常用的检测方法有三种,希望对您有所帮助。
1. 压力测试。检测方法是给传感器通电。用嘴对着压力传感器的气孔吹气。用万用表的电压档检测传感器输出端的电压变化。如果压力传感器的相对灵敏度较高,这种变化会很明显。如果完全没有变化,则需要使用气源施加压力。
通过上述方法,基本可以检测出传感器的状态。如果需要精确测试,则需要使用标准压力源。给传感器施加压力,并根据压力和输出信号的变化对传感器进行校准。在条件允许的情况下,还可以检测温度等相关参数。
2. 零点检测。使用万用表的电压档检测传感器在无压力状态下的零点输出。该输出通常为毫伏级电压。如果超出传感器的技术规格,则表示传感器的零点偏差超出范围。
3. 桥路检测。主要用于检测传感器电路是否正确。通常情况下,传感器电路为惠斯通全桥电路。使用万用表的欧姆档,测量输入端和输出端之间的阻抗。这两个阻抗值即为压力传感器的输入阻抗和输出阻抗。如果阻抗为无穷大,则桥路断开。这意味着传感器存在问题或引脚定义错误。
添加图片

Sino-Inst提供十余款压阻式差压变送器。我们提供多种压阻式差压变送器产品供您选择,包括免费样品和付费样品。Sino-Inst是一家全球知名的压力传感器制造商,总部位于中国。我们拥有成熟的经销网络,产品覆盖全球30多个国家和地区。压阻式差压变送器产品在欧洲、东南亚和中东地区广受欢迎。选择经过认证的供应商,您可以确保产品安全。我们拥有ISO9001和ISO14001认证。

Request a Quote